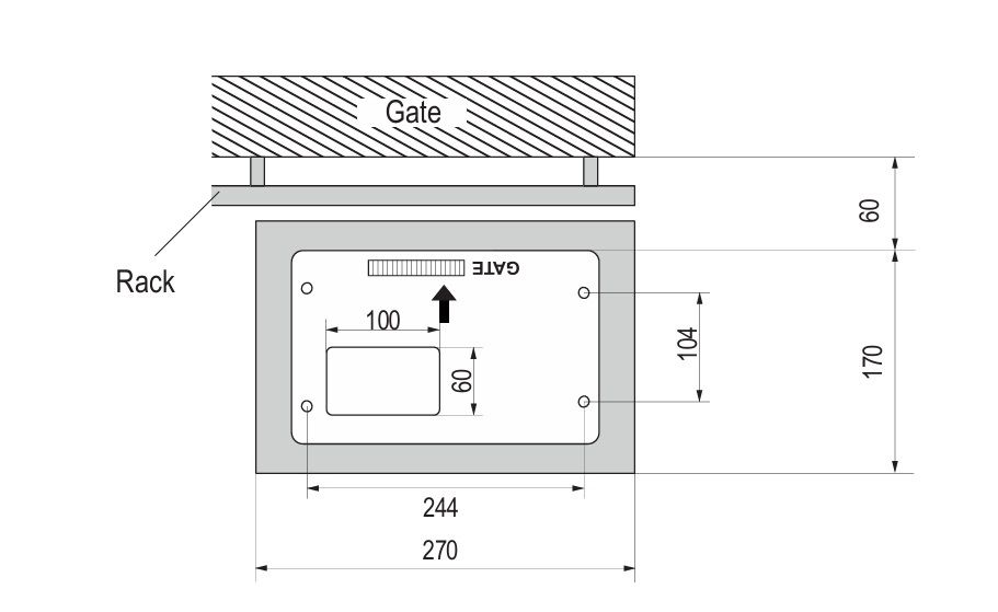
Montážna doska LiftMaster 041A0315 pre pohony SL400EVK, SL600EVK, SL1000EVK.
Prosím, venujte nám pozoronosť. Na prispôsobenie obsahu a analýzu návštevnosti používame súbory cookie. Svoj súhlas môžete vždy upraviť.